珠澳湾世纪中心规划设计变更公示
扫描到手机,新闻随时看
扫一扫,用手机看文章
更加方便分享给朋友
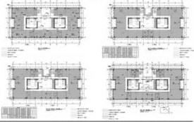
珠澳湾世纪中心一区A座高区41层至63层大面积办公层由2-3个办公单元调整为5-6个办公单元,面积由345-695平方米调整为189-350平方米,层平面布局规划设计相应进行调整,根据相关要求现征求利害关系人意见,利害关系人对公示内容有异议可在登报后向珠海中珠商业投资有限公司反馈。
一、公示内容如下:
建设单位名称:珠海中珠商业投资有限公司
建设用地性质:商业、商务、幼儿园、一级邻里中心、公交首末站
建设项目名称:珠澳湾世纪中心
建设位置:拱北夏湾前河东路东侧、侨光路北侧
主要规划技术指标:A座计容、建筑面积及建筑高度等均不变,调整后各项指标均满足规划条件要求,日照满足规范要求
二、平面布局具体调整如下:
1、第41至51层、第53至61层由3个办公单元调整为6个办公单元;第62层由2个办公单元调整为5个办公单元。
2、第63层商业(员工餐厅)由2个调整为4个,男、女公共卫生间分别调整至D轴交1轴和10轴。
3、取消第41~51层、第53~62层B轴交3轴处茶水间。
4、调整第41~51层、第53~63层D轴交4轴及7轴楼梯送风井、前室送风井的位置,调整楼梯前室、男女卫生间轮廓。
5、调整第41~51层、第53~63层D轴交6轴备用管井轮廓。
6、第41~51层、第53~62层E轴交5轴及6轴处增加镂空造型线条。
7、外立面装饰线条由原凸出幕墙外边线950mm,调整至450mm。
三、如对公示及图纸内容有不清楚的可到珠澳湾销售中心具体咨询
四、项目公示内容见珠海特区报和项目现场
五、有效反馈意见方式:
1. 书面意见请注明联系人姓名、联系电话、联系地址、送达(或邮寄)至珠海市香洲区珠澳湾世纪中心销售中心。
2、有效反馈意见期限:登报后一周内。
声明:本文由入驻焦点开放平台的作者撰写,除焦点官方账号外,观点仅代表作者本人,不代表焦点立场。


