小区内开建养老会所,有两份规划还不一致?
扫描到手机,新闻随时看
扫一扫,用手机看文章
更加方便分享给朋友
被点名单位
龙华区民治街道办
近日,多名深圳市龙华区金域华府小区(以下简称“金域华府”)的业主向记者反映,民治街道办将养老服务中心选址在这个小区内,占地约1600平方米。多名业主担忧,将公共养老服务中心选址在住宅小区内将对小区居民权益造成侵害。再有,他们在深圳公共资源交易中心查到的规划和街道办公示的规划不一样,前者没有设床位。
对此,深圳市龙华区民治街道办回应称,该地块为公配房产,由政府统一调配使用,养老中心建成后将加强管理,较大限度减少对小区居民的影响。
居民反映
小区内忽然开建“养老会所”
公示为街道的长者服务中心
今年9月,有金域华府业主发现,小区9栋1层突然开始进行施工,现场公示是一个名为“颐年会所”的项目,属民治街道的长者服务中心。有业主告诉记者,此前,9栋1层一直是小区物业管理处的办公室,突然开工,要建一个“养老会所”,且是对周边辖区居民开放,让小区居民颇有意见。
对于这个突然出现的长者服务中心,小区业主内心较大的疑问是“公共服务中心为何要建在住宅小区内”?根据公开介绍,民治街道长者服务中心(颐年会所)面积1600平方米,是为了积极应对人口老龄化,区、街道提前布局,加快推进养老服务阵地建设,民治片区增设的一处社区养老服务阵地试点,让老年人更方便、快捷地获得就近就便的养老服务。
多名小区业主向记者出示了他们购买房产时签的合同,其中有一条关于车位及会所的规定写明,会所产权归政府所有,为小区业主提供服务。而根据此前开发商与规土部门签订的土地使用权出让补充合同书中提及,小区会所1600平方米,建成后免费提供使用,产权归政府。对“产权归政府”这一点,小区居民并无异议,争议较大的是,这个会所究竟是应该只为小区内居民服务,还是可以作为“公共配套”敞开服务周边辖区?
几乎所有小区业主都认为,把公共的养老服务中心开在住宅小区内是不合理的,业主黄先生担心,“一旦向周边辖区开放,小区的门禁管理、公共空间、停车场花园等等都会受到影响,也会带来相应的消防、交通安全隐患,这是让华府业主让出自己的资源为政府公共服务买单”。他提到,对这样涉及侵害小区业主权益的项目,街道办未提前调研民意就动工,是让许多业主不满的原因之一。
据了解,金域华府小区建于2010年,目前二手房放盘价8万/平方米以上。
记者走访
要进入先要刷门禁
居民担忧小区内管理混乱
记者走访该项目地块看到,颐年会所确实位于金域华府小区内,要进入这里先要刷小区门禁。走进小区后不久便能看到小区9栋,目前9栋01号房(复式)是暂停施工的状态,室内较为潮湿阴暗,采光偏差,堆积了不少装修板材,但无人开工。金域华府业主质疑,此地块三面环水、日照不足、没有独立交通系统,不符合民政局对养老服务设施选址的惯例需求。
会所现场还能看到,养老服务中心一楼的一扇门与小区停车场相连,二楼的一扇门可直通小区花园与9栋住宅电梯。业主袁女士和众多邻居都担心,这样的设计会造成小区内管理混乱,“本来是我们小区私家的花园和停车场,以后是不是要开放给周边大家一起用?日常管理难免变得混乱”。
业主追问
两份规划为何不一样
到底该不该设床位?
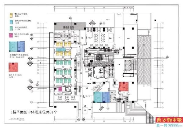
除了对小区公共资源可能造成的影响外,养老服务中心本身的规划也让许多业主感到疑惑。此前,有业主在深圳公共资源交易中心网页查到,颐年会所一楼规划31张床位,其中10张24小时全托床位、12张日托床位、1张vip日托床位、3张康复室床位、3张医务理疗室床位、2张护工照料床位。
多位业主提出,如果在养老服务中心设置床位,医疗配套能否跟上、医疗垃圾是否会影响小区居民健康等等问题都令人担心,其中一位业主称,“这等于在小区里开了一个老年社康,对居民怎么可能没有影响”?
但在另一份民治街道办出具的规划中,这是一个为居民提供保健康复、文体娱乐、学习教育等精准服务的平台,并不会有托管床位设计。一层将有阅读书吧、琴棋书画区、助餐娱乐区、午间休息区等10个功能区,二层则保留原有功能,设多功能活动室、休闲洽谈区等,培育社区社会组织更好服务辖区居民。
面对两份不一样的规划,多位小区业主都产生了怀疑,这个长者服务中心究竟有没有床位?是什么属性?目前的设计以后还会不会产生变化?对业主们来说,一切都还是不定的未知数。
官方回应
龙华区民治街道办:
有序合法推进该项目建设
尽量减少对小区居民影响
针对该养老服务中心目前存在的几大争议,记者联系了深圳市龙华区民治街道办。针对该地块的性质,民治街道办回复称,从法律层面看,公配房产权归政府所有,由政府统一调配使用。政府公配用房的性质就是提供为社区居民服务的公益性场所,可以为小区业主提供服务,但不是只为小区业主提供服务。
而针对居民们质疑的对外开放养老服务中心将对小区管理造成影响,民治街道办回应称,根据《深圳市人民政府办公厅关于印发深圳市构建高水平“1336”养老服务体系实施方案(2020-2025年)的通知》要求,对政府和事业单位的空置房屋,各区和街道可探索以低偿或无偿等方式,提供给社会力量使用,供其在社区为老年人开展日间照料、康复护理、助餐助行等服务,将闲置公有房产优先用于养老服务。街道长者服务中心(颐年会所)所在位置为万科金域华府一期9栋裙楼1层101(复式两层),其前方道路规划为市政道路。按照规划,街道长者服务中心(颐年会所)为邻近主干道的公配物业。小区居民质疑“对外开放”,而实际也仅仅是辐射小区周边的社区居民。关于小区花园和停车位管理等问题,该场地建成后将加强与小区物业的对接,可探索场地预约制等管理方式加强管理,尽量减少对小区居民日常生活的影响。
关于床位设置问题,民治街道办回应称,结合金域华府公配物业场地的实际情况和社区居民需求,该处公配物业暂不适合开展短期托养服务。考虑到这一点,街道于2021年8月17日进行了项目设计变更,原始设计图纸的托养区变更为午间休息区和琴棋书画区,同时该区域兼具理疗按摩室的功能,街道将通过放置沙发椅、按摩椅、理疗床、休息床等方式对场地进行布置。民治街道辖区已规划建设一个具有短期托养服务能力的、功能齐全的长者服务中心,预计于2022年底投入使用。
记者向民治街道办确认,民治街道长者服务中心(颐年会所)项目在施工过程中确多次遭到业主阻止,为了推动该项目顺利进行,也曾几次开座谈会进行协调。下一步,街道办将与相关部门做好小区业主的宣传解释工作,继续有序合法推进该项目建设。
广东省新闻媒体优秀品牌栏目 广东新闻奖新闻名专栏二等奖 深圳新闻奖栏目一等奖
说明:为提升马上办评价体系和评分结果的科学性、客观性,本栏目将升级评价方式,从“一稿一评分”升级为“月度点评”,还将引入第三方评议团,从更广阔的视野、更多元的维度评价被点名单位的处理。敬请关注。
要从人民群众普遍关注、反映强烈、反复出现的问题出发,拿出更多改革创新举措,把就业、教育、医疗、社保、住房、养老、食品安全、生态环境、社会治安等问题一个一个解决好。——2020年10月14日,习近平在深圳经济特区建立40周年庆祝大会上的重要讲话中强调
人民群众什么方面感觉不幸福、不快乐、不满意,我们就在哪方面下功夫,千方百计为群众排忧解难。
——2018年3月7日,习近平参加十三届全国人大一次会议广东代表团的审议时指出
要大力提倡“马上就办”的工作精神,讲求工作时效,提高办事效率,使少讲空话、狠抓落实在全市进一步形成风气、形成习惯、形成规矩。
——1991年2月20日,在福州市委工作会议上,时任市委书记的习近平排名前列次向全市干部明确提出
为实践“马上就办”的精神,2015年10月起,南都开设“马上办”栏目,促进民生问题解决,促成市民与部门沟通。
来源:南方都市报
声明:本文由入驻焦点开放平台的作者撰写,除焦点官方账号外,观点仅代表作者本人,不代表焦点立场。


